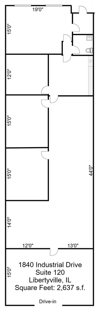
1840 Industrial Drive 120Libertyville, IL 60048




This unit features 2,640 sq ft with 1,560 SF of office space. Located in Lake County this property was built in 1989 with form and function in mind. Each space has access to 4 common truck level docks and grade level loading. The entire building is wired for high speed internet access and mail & overnight delivery drop boxes on site. This property is conveniently located just north of Peterson Road on Industrial Drive. Wagener Equities, Inc is the managing and leasing agent for this fine property.
| 4 months ago | Listing updated with changes from the MLS® | |
| 4 months ago | Status changed to Active | |
| a year ago | Listing first seen on site |
Based on information submitted to the MLS GRID as of 2026-03-10 01:23 AM UTC. All data is obtained from various sources and may not have been verified by broker or MLS GRID. Supplied Open House Information is subject to change without notice. All information should be independently reviewed and verified for accuracy. Properties may or may not be listed by the office/agent presenting the information.
Last checked: 2026-03-10 01:23 AM UTC
MRED DMCA Copyright Information Copyright © 2026 Midwest Real Estate Data LLC. All rights reserved.


Did you know? You can invite friends and family to your search. They can join your search, rate and discuss listings with you.