1863 Chandolin LaneElgin, IL 60124

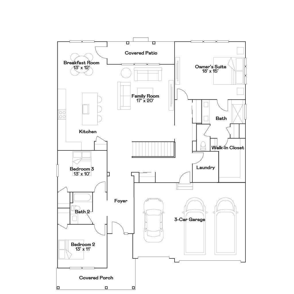
SOLD BEFORE PRINT! Experience the charm and luxury of the Ridgefield Ranch, a beautifully designed home with modern upgrades throughout. Sunroom, Look-out basement is some of the options! From the hardwood flooring that flows through the entryway, family room, and kitchen, to the stylish 42" cabinets, every detail has been thoughtfully considered. The kitchen boasts quartz countertops, an oversized island, and additional windows to enhance natural light, making it an ideal space for cooking and entertaining. The primary bedroom is a true retreat with an elegant walk-in shower and transom window. A full, unfinished basement opens up possibilities for a workout space or rec room in the future. The home is designed with energy efficiency in mind, including James Hardie Board siding and Low-E vinyl double-pane windows with grills. Perfectly situated in a serene, country-like setting yet only minutes from the Randall Road corridor with shopping, dining, and entertainment options, this community offers both convenience and natural beauty. Families will appreciate the community park, splash pad, and highly regarded St. Charles Community School District 303. Please note: Photos shown represent a similar model and may vary slightly from the actual home.
| a year ago | Listing updated with changes from the MLS® | |
| a year ago | Listing first seen on site |
Based on information submitted to the MLS GRID as of 2026-04-08 10:15 AM UTC. All data is obtained from various sources and may not have been verified by broker or MLS GRID. Supplied Open House Information is subject to change without notice. All information should be independently reviewed and verified for accuracy. Properties may or may not be listed by the office/agent presenting the information.
Last checked: 2026-04-08 10:15 AM UTC
MRED DMCA Copyright Information Copyright © 2026 Midwest Real Estate Data LLC. All rights reserved.

