11725 Ryann RoadHuntley, IL 60142




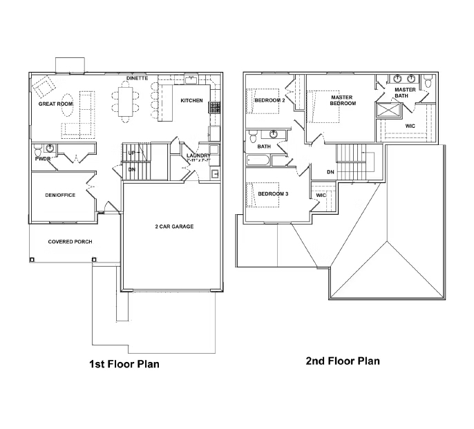
New Build Ready in May/June- still time to pick your finishes/upgrades too! Welcome to the ASPEN, this two story home features a spacious covered front porch, an open-concept main floor with seamless flow between living, dining, and kitchen areas, plus a cozy den for work or relaxation. A convenient powder room and laundry center complete the first floor. Upstairs, three generously sized bedrooms include a luxurious primary suite with dual sinks, a walk-in shower, and a walk-in closet, while two additional bedrooms share a stylish hall bath. With a FULL BASEMENT and 2-car garage, this home combines thoughtful design and comfortable living. Stillwell Grove, Huntley's newest enclave of just 41 homesites-perfect for buyers who prefer the privacy of a smaller community over a large subdivision. This neighborhood is not age-restricted and provides the ease of lawn care and snow removal included-true low-maintenance living at its best! ***Buyer to pick interior finishes, home will be held a drywall for selections*** Serviced by the highly rated Huntley School District 158 and right near the booming Rt. 47 corridor-putting shopping, dining, and conveniences just steps from your door. Fully Furnished Ranch Model is open for viewing- visit the sales office soon to be a part of Huntley's newest community: Stillwell Grove! Location notes: I-90 to Route 47 North to Powers Rd (By the Culvers) East to Samantha Lane to Development at corner of Samantha and Ryann- This Two story is up and under roof- ready for you to make it your own and move in this Summer!
| 4 hours ago | Listing updated with changes from the MLS® | |
| 4 hours ago | Status changed to Active | |
| 6 days ago | Listing first seen on site |
Based on information submitted to the MLS GRID as of 2026-02-22 09:50 AM UTC. All data is obtained from various sources and may not have been verified by broker or MLS GRID. Supplied Open House Information is subject to change without notice. All information should be independently reviewed and verified for accuracy. Properties may or may not be listed by the office/agent presenting the information.
Last checked: 2026-02-22 09:50 AM UTC
MRED DMCA Copyright Information Copyright © 2026 Midwest Real Estate Data LLC. All rights reserved.


Did you know? You can invite friends and family to your search. They can join your search, rate and discuss listings with you.