Save
Ask
Tour
Hide
$480,000
70 Days On Site
1648 Linden AvenueHanover Park, IL 60133
For Sale|Single Family Residence|Active Under Contract
5
Beds
3
Total Baths
3
Full Baths
2,062
SqFt
$233
/SqFt
1961
Built
County:
Cook
Listing Courtesy of MRED as distributed by MLS Grid of Keller Williams Inspire - Geneva
Call Now: 847.967.0022
Is this the listing for you? We can help make it yours.
847.967.0022



Save
Ask
Tour
Hide
Save
Ask
Tour
Hide
Listing Snapshot
Price
$480,000
Days On Site
70 Days
Bedrooms
5
Inside Area (SqFt)
2,062 sqft
Total Baths
3
Full Baths
3
Partial Baths
N/A
Lot Size
0.1818 Acres
Year Built
1961
MLS® Number
12593518
Status
Active Under Contract
Property Tax
$8,879
HOA/Condo/Coop Fees
N/A
Sq Ft Source
Estimated
Friends & Family
Recent Activity
| 4 weeks ago | Listing updated with changes from the MLS® | |
| 2 months ago | Status changed to Active Under Contract | |
| 2 months ago | Listing first seen on site |
General Features
Acres
0.1818
Garage
Yes
Garage Spaces
2
Parking
ConcreteGarage Door OpenerDetachedGarage
Parking Spaces
10
Property Sub Type
Single Family Residence
Sewer
Public Sewer
Water Source
Public
Interior Features
Basement
FinishedFull
Cooling
Central Air
Electric
Circuit Breakers
Heating
Natural Gas
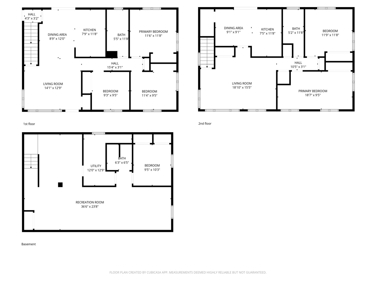
Bedroom 2
Dimensions - 12X10Level - Main
Bedroom 3
Dimensions - 10X09Level - Main
Bedroom 4
Dimensions - 19X10Level - Second
Bedroom 5
Dimensions - 12X12Level - Second
Dining Room
Family Room
Kitchen
Dimensions - 17X12Level - Main
Kitchen- 2nd
Dimensions - 12X17Level - Second
Laundry
Living Room
Master Bedroom
Dimensions - 12X12Level - Main
Office
Dimensions - 10X12Level - Basement
Save
Ask
Tour
Hide
Exterior Features
Construction Details
Vinyl Siding
Community Features
MLS Area
Hanover Park
School District
46
Township
Hanover
Schools
School District
46
Elementary School
Unknown
Middle School
Unknown
High School
Unknown
Listing Courtesy of MRED as distributed by MLS Grid of Keller Williams Inspire - Geneva
Based on information submitted to the MLS GRID as of 2026-05-26 11:41 PM UTC. All data is obtained from various sources and may not have been verified by broker or MLS GRID. Supplied Open House Information is subject to change without notice. All information should be independently reviewed and verified for accuracy. Properties may or may not be listed by the office/agent presenting the information.
Last checked: 2026-05-26 11:41 PM UTC
MRED DMCA Copyright Information Copyright © 2026 Midwest Real Estate Data LLC. All rights reserved.
Based on information submitted to the MLS GRID as of 2026-05-26 11:41 PM UTC. All data is obtained from various sources and may not have been verified by broker or MLS GRID. Supplied Open House Information is subject to change without notice. All information should be independently reviewed and verified for accuracy. Properties may or may not be listed by the office/agent presenting the information.
Last checked: 2026-05-26 11:41 PM UTC
MRED DMCA Copyright Information Copyright © 2026 Midwest Real Estate Data LLC. All rights reserved.
Neighborhood & Commute
Source: Walkscore
Save
Ask
Tour
Hide

